makas.nl maakt gebruik van cookies.

We gebruiken cookies om de website naar behoren te laten werken, om functies voor social media te bieden en om onze website te analyseren. Dit gebeurt anoniem. U gaat akkoord met onze cookies als u onze website blijft gebruiken. Op onze website vindt u ook ons privacybeleid en cookieverklaring.

Frambozenstraat 78, Den Haag

Specifications

Price
€ 385.000 k.k.
District
Vruchtenbuurt
Location
Near quiet road, In residental area
Zipcode
2564 XN Den Haag
Type
Walk-up flat
BuildYear
1929
Build type
Existing
Balcony
Yes
Parking
Garage, Lock-up
Rooms
4
Bedrooms
2
Living surface
81m²
Volume
300m³
Energy label
D
Acceptance
Directly

Download Brochure


Share:

  • Description

    Op de hoek met de Tomatenstraat gelegen, ruim (opp. ca. 81m²) en licht appartement op de eerste etage met achterbalkon over de gehele breedte. Door de ligging op de hoek van de straat creëren de kozijnen rondom veel lichtinval!

    De woning ligt in een mooie straat in de gezellige Vruchtenbuurt. De winkels van de Vlierboomstraat en De Savornin Lohmanplein zijn vlakbij, evenals het openbaar vervoer. Strand en duinen liggen op fietsafstand.
    Diverse scholen, zowel lagere als middelbare, zijn in de nabijheid.

    Indeling:

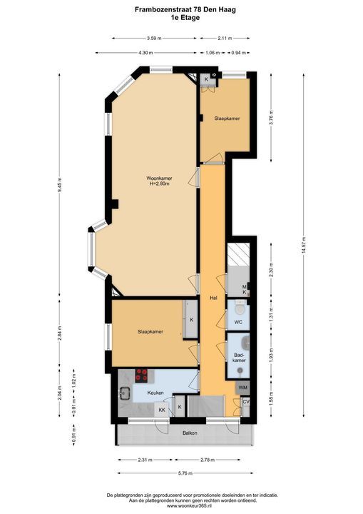
    Eigen entree op de begane grond, trap naar de 1e etage: overloop, ruime doorgebroken woon-/eetkamer (9.5x3.6/4.3) met mooie laminaat vloer, kunststof kozijnen met dubbel glas waarin fraaie het glas-in-lood in is verwerkt, voorzijkamer (3.76x2.11), gangkast, modern toilet, badruimte (1.93x0.94) met douche en wastafel, ouderslaapkamer (2.84x3.59), moderne keuken (2.31/2.41x2.04) met enige inbouw apparatuur, achterbalkon (5.8x0.9) op het noordwesten.

    Eventueel bestaat er de mogelijkheid om de naastgelegen garage (Frambozenstraat 80) erbij te kopen, doch uitsluitend in combinatie met de woning; daze wordt dan leeg opgeleverd). Koopsom in overleg.

    Bijzonderheden:

    - Bouwjaar 1929
    - Erfpacht eeuwigdurend
    - Canon thans € 199,65 per half jaar, vast tot 01-01-2030
    - 2/7e aandeel in actieve VVe.
    - Bijdrage VvE is € 138,61 per maand
    - Energielabel D
    - Grotendeels voorzien van kunststof kozijnen met isolatieglas
    - C.v. gas combiketel 2011 (Vaillant HR Pro)
    - Elektra 6 groepen met aardlekschakelaar
    - Ouderdoms lood- en asbestclausule zullen in de koopakte worden opgenomen
    - 10 min fietsafstand van het strand.
    - Evenals niet zelfbewoningsclausule door de verkoper.


    De koopovereenkomst wordt vastgelegd in de NVM koopakte, waarin eventueel extra clausules worden opgenomen zoals: ouderdomsclausule, materialenclausule, de Meetinstructie, het Energielabel en afspraken voor de nutsbedrijven. De tekst van de NVM koopakte, alsmede de extra clausules, zijn op verzoek beschikbaar.

    Interesse in dit huis? Schakel uw eigen NVM-aankoopmakelaar in.

  • Location

    [ { "address": "Frambozenstraat 78", "zipCode": "2564 XN", "city": "Den Haag", "lat": 52.0700181, "lng": 4.2549564, "heading": 0, "pitch": 0 } ]
  • Reply

    The form has successfully been sent. We wil contact you as soon as possible.

    Unfortunately we can not conclusively determine whether you are a human or an automated bot/spammer. Hence, we are unable to submit the form. Please retry or contact the real estate agent directly via email.

    Something went wrong while sending the contact form. Check if you correctly filled in all required fields and try again.

    recaptcha
    reCAPTCHA
    PrivacyTerms
  • Floor plans


Related houses

Sold
Ericalaan 127
2555 LG Den Haag
€ 310.000 k.k.
89m² 4 rooms
Sold
Ahornstraat 7
2565 ZT Den Haag
€ 425.000 k.k.
84m² 4 rooms
Sold
van St. Aldegondeplein 0 ong
2581 TJ Den Haag
€ 344.500 k.k.
65m² 3 rooms
Sold
Prins Mauritslaan 116
2582 LX Den Haag
€ 349.000 k.k.
80m² 4 rooms
Makelaars Associatie