makas.nl maakt gebruik van cookies.

We gebruiken cookies om de website naar behoren te laten werken, om functies voor social media te bieden en om onze website te analyseren. Dit gebeurt anoniem. U gaat akkoord met onze cookies als u onze website blijft gebruiken. Op onze website vindt u ook ons privacybeleid en cookieverklaring.

Saffierhorst 59, Den Haag

Specifications

Sold
Price
€ 695.000 k.k.
District
Mariahoeve en Marlot
Location
Near quiet road, In residental area
Zipcode
2592 GK Den Haag
Type
Duplex
BuildYear
1964
Build type
Existing
Garden
Yes, Backyard, Southeast, 1380×850cm
Parking
Garage, Indoor
Rooms
6
Bedrooms
4
Living surface
183m²
Plot surface
279m²
Volume
675m³
Energy label
D
Acceptance
Directly

Download Brochure


Share:

  • Description

    SAFFIERHORST 59 MARIAHOEVE

    In rustige straat in Mariahoeve gelegen half vrijstaande 2-onder-1 kap woning met 5/6 kamers en een ruime onder de woning gelegen garage.
    De woning is geheel voorzien van kunststof kozijnen met dubbel glas, maar liefst 20 zonnepanelen op het dak en verkeert in goede staat van onderhoud. Er is een zonnige achtertuin op het zuidoosten en flinke zijtuin.

    Het woning is ideaal gelegen t.o.v. de uitvalswegen (A4, A44) en openbaar vervoer (tramlijn 6). Voor de dagelijkse boodschappen gaat u naar het nabijgelegen winkelcentrum 't Kleine Loo, The Mall of the Netherlands is 5 minuten met de fiets, ook het centrum van Den Haag is niet ver weg, evenals openbaar vervoer.

    Indeling:

    Verhoogde parterre: ruime hal, gang, zeer grote, brede en lichte woon/eetkamer (9.47x4.67/5.19) met fraaie visgraat parketvloer en open haard, toilet met fonteintje, ruime moderne keuken (3.52x2.58) voorzien van inbouwapparatuur zoals vaatwasser, oven, koel/vriescombinatie, el. kookplaat en afzuigkap en een zwart stenen aanrechtblad, balkon (3.62x1.20) met trap naar de achtertuin.

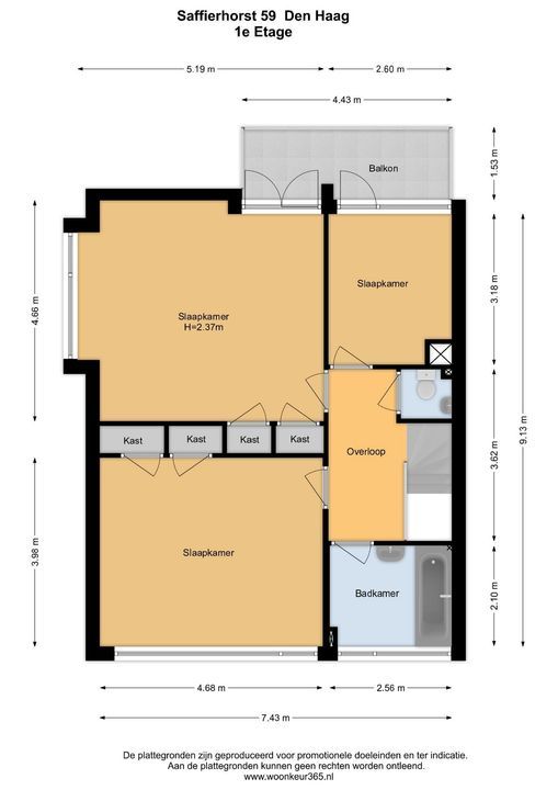
    1e etage: overloop, toilet met fonteintje, grote voorslaapkamer (4.68x3.98) met vaste kasten, royale achterkamer (4.66x5.19) met vaste kasten en erker, achter zijkamer (3.18x2.60) met toegang tot achterbalkon (4.43x1.53) op het zuidoosten. Badkamer (2.56x2.10) met ligbad en vaste wastafel aan de voorzijde.

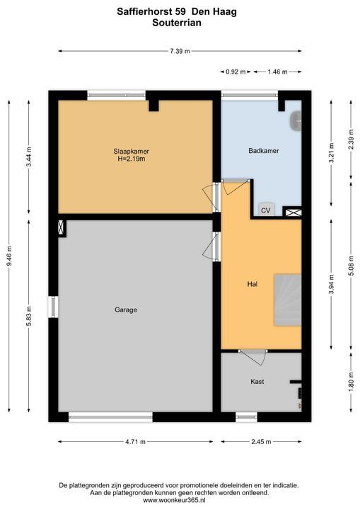
    Vanuit de verhoogde parterre toegang tot het souterrain: grote hal (3.94x2.45), berging (2.45x1.80), achter slaapkamer /werkkamer (4.71x3.44), achter zijkamer (3.21x2.45/1.46) met CV-ketel en aansluiting wasmachine.

    Grote brede garage met elektrische deur (5.83x4.71) annex berging.

    Voortuin met toegangspad naar de garage, zij tuin en ruime achtertuin (ca. 13.8x8.9/7.5) op het zuidoosten.

    Bijzonderheden:

    - Bouwjaar 1964
    - Erfpacht tot en met 31-12-2035, huidige canon € 249,58 per jaar
    - Er is een nieuwe erfpachtaanbieding aangevraagd bij de Gemeente
    - Geheel voorzien van kunststof kozijnen met Hr ++ glas (2017)
    - C.v. combi ketel Bosch 35 HRC 2009
    - Elektra 8 groepen met 2 aardlekschakelaars
    - 20 zonnepanelen
    - Ouderdoms- lood- en asbestclausule zullen in de koopakte worden opgenomen

    De koopovereenkomst wordt vastgelegd in de NVM koopakte, waarin eventueel extra clausules worden opgenomen zoals: ouderdomsclausule, materialenclausule, de Meetinstructie, het Energielabel en afspraken voor de nutsbedrijven. De tekst van de NVM koopakte, alsmede de extra clausules, zijn op verzoek beschikbaar.


    Interesse in dit huis? Schakel uw eigen NVM-aankoopmakelaar in.
    ------------------------------------------------------------------------------------------------------------------------------------------

    Located on a quiet street in Mariahoeve, this semi-detached 5/6-room house features a large garage underneath.
    The house is fully equipped with PVC window frames with double glazing, solar panels on the roof, and is in good condition. There is a sunny southeast-facing back garden and a large side garden.

    The house is ideally situated for access to major roads (A4, A44) and public transport (tram line 6). For daily shopping, you can visit the nearby 't Kleine Loo shopping center. The Mall of the Netherlands is a 5-minute bike ride away. The Hague city center and public transport are also nearby.

    Layout:

    Raised ground floor: spacious hall, hallway, very large, wide, and bright living/dining room (9.47x4.67/5.19) with beautiful herringbone parquet flooring and a fireplace, toilet with a small sink, spacious modern kitchen (3.52x2.58) equipped with built-in appliances such as a dishwasher, oven, fridge/freezer, electric hob, extractor hood, and a black stone countertop, balcony (3.62x1.20) with stairs to the back garden.

    First floor: landing, toilet with a small sink, large front bedroom (4.68x3.98) with built-in wardrobes, spacious back room (4.66x5.19) with built-in wardrobes and a bay window, rear side room (3.18x2.60) with access to the southeast-facing rear balcony (4.43x1.53). Bathroom (2.56x2.10) with a bathtub and a washbasin at the front.

    From the raised ground floor, access to the basement: large hall (3.94x2.45m), storage room (2.45x1.80m), rear bedroom/study (4.71x3.44m), rear side room (3.21x2.45/1.46m) with central heating boiler and washing machine connection.

    Large, wide garage with electric door (5.83x4.71m) and storage space

    Front garden with access path to the garage, side garden, and southeast-facing back garden (approx. 13.80x8.90/7.50m).

    Special features:

    - Built in 1964
    - Leasehold until December 31, 2035, current annual rent €249.58
    - A new leasehold offer has been requested from the Municipality
    - Fully fitted with PVC window frames with HR++ glass (2017)
    - Central heating Bosch 35 HRC combi boiler 2009
    - Electricity 8 circuits with 2 safety switches and PV
    - 20 solar panels on the roof
    - Age, lead, and asbestos clauses will be included in the purchase agreement.

    The purchase agreement will be recorded in the NVM purchase agreement, which may include additional clauses such as: age clause, materials clause, measurement instructions, energy label, and agreements for utility companies. The text of the NVM purchase agreement, as well as the additional clauses, is available upon request.

    Interested in this house? Engage your own NVM purchasing agent.

  • Location

    [ { "address": "Saffierhorst 59", "zipCode": "2592 GK", "city": "Den Haag", "lat": 52.0950688, "lng": 4.355909, "heading": 0, "pitch": 0 } ]
  • Reply

    The form has successfully been sent. We wil contact you as soon as possible.

    Unfortunately we can not conclusively determine whether you are a human or an automated bot/spammer. Hence, we are unable to submit the form. Please retry or contact the real estate agent directly via email.

    Something went wrong while sending the contact form. Check if you correctly filled in all required fields and try again.

    recaptcha
    reCAPTCHA
    PrivacyTerms
  • Floor plans


Related houses

Sold
Pansierstraat 13
2584 EG Den Haag
€ 825.000 k.k.
160m² 6 rooms
Sold
Haagsestraat 71
2587 TG Den Haag
€ 625.000 k.k.
127m² 5 rooms
Sold
Badhuisweg 18
2587 CH Den Haag
€ 695.000 k.k.
186m² 5 rooms
Sold
Antonie Duyckstraat 139 A
2582 TH Den Haag
€ 700.000 k.k.
124m² 5 rooms
Makelaars Associatie