makas.nl maakt gebruik van cookies.

We gebruiken cookies om de website naar behoren te laten werken, om functies voor social media te bieden en om onze website te analyseren. Dit gebeurt anoniem. U gaat akkoord met onze cookies als u onze website blijft gebruiken. Op onze website vindt u ook ons privacybeleid en cookieverklaring.

Johan van Oldenbarneveltlaan 92, Den Haag

Kenmerken

Verhuurd
Prijs
€ 4.500 p.m. ex.
Wijk
Geuzen- en Statenkwartier
Locatie
Aan rustige weg, In woonwijk
Postcode
2582 NX Den Haag
Woningtype
Tussenwoning
Bouwjaar
1911
Soort bouw
Bestaande bouw
Tuin
Ja, Achtertuin, Zuidoost, 550×700cm
Parkeren
Betaald parkeren
Kamers
8
Slaapkamers
6
Oppervlakte
287m²
Inhoud
1.140m³
Energielabel
D
Oplevering
Per direct

Download Brochure


Deel deze woning op:

  • Omschrijving

    Larger than the standard traditional classic mansion (287m²) in the area, in very good condition, with 6 bedrooms, in lovely and quiet part and street of STATENKWARTIER, on walking distance of the shops of the Frederik Hendriklaan and close to the German and French school.

    The house is fully equipped with new windows with double glazing.

    Lay out:

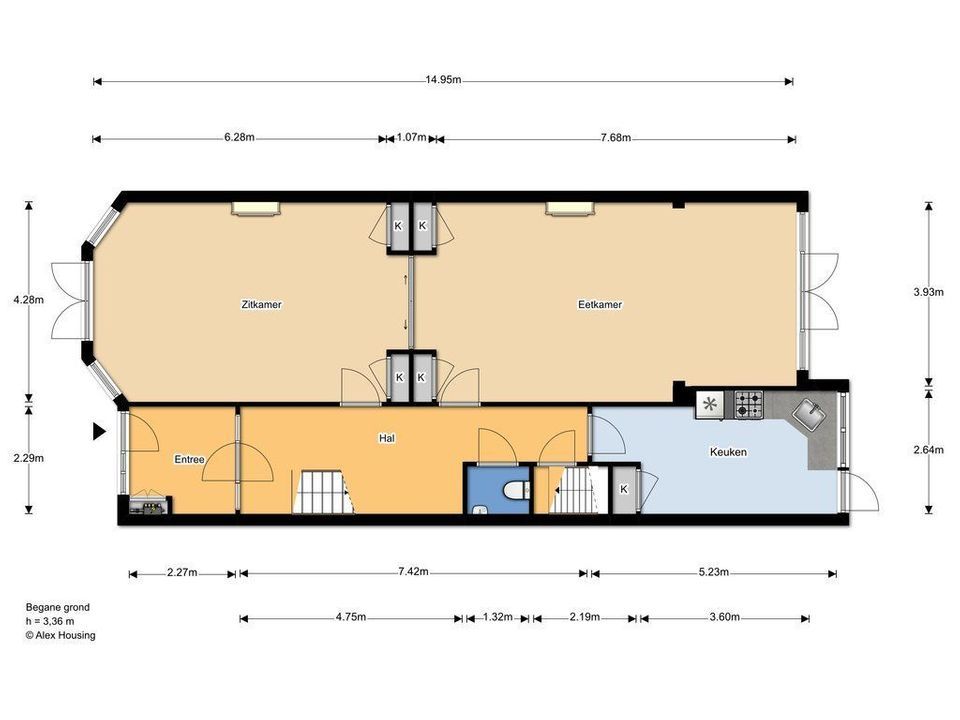
    Ground floor: large entrance and hall, toilet, light and bright very large living-/dining room en suite (14.95x4.28) with partition doors and built in cupboards on both sides, new wooden floor, fully equipped kitchen (5.23x2.64) with all the necessary appliances and traditional built in cupboard, basement (6.34x2.54).

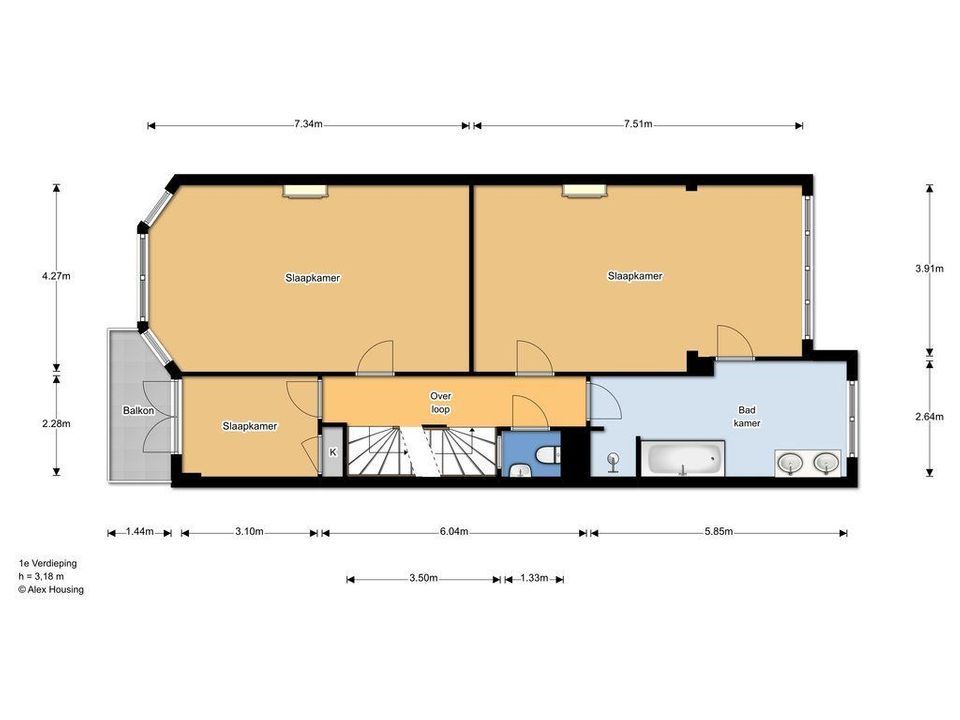
    1st floor: landing, large bedrooms at the frontside (7.34x4.27) bedroom on the side (3.10x2.28) with balcony, huge bedroom on the backside (7.51x4.27/3.91) very large bathroom (5.85x2.64) with bath, separate shower, double washbasin, separate toilet.

    2nd floor: landing, room on the frontside (5.25x4.27) with a balcony, frontroom on the side (3.10x2.28), bedroom on the backside (5.89x4.27) with large balcony (2.73x3.74) on the sout-east, big laundryroom with washingmachine, dryer, washbasin and large working top, separate shower, toilet.


    Front garden and garden on the backside (South-East) (7.0x5.5) with a shed.

    Additional information:

    - Fully equipped with double glazing and new window frames on the backside
    - a classic house with original details like beautiful stained-glass windows.
    - walking distance to both French and German school / close to European school
    - public transport tram 1, 9 and 17
    - walking distance to 'famous' Frederik Hendriklaan with all the required shops!
    - the rent is excluding gas, electricity, water, internet and tv
    - a minimum of one month deposit

  • Locatie

    [ { "address": "Johan van Oldenbarneveltlaan 92", "zipCode": "2582 NX", "city": "Den Haag", "lat": 52.0985134, "lng": 4.2774873, "heading": 0, "pitch": 0 } ]
  • Reageer

    Uw bericht is naar ons verzonden. Wij nemen zo snel mogelijk contact met u op.

    Sorry, we kunnen helaas niet met zekerheid vaststellen of je een mens of een geautomatiseerde bot/spammer bent. Hierdoor kunnen we het formulier dat je hebt ingevuld niet verzenden. Probeer het opnieuw of neem direct contact op met de makelaar via e-mail.

    Er is iets mis gegaan met het versturen van het formulier.
    Controleer of u alle velden (goed) heeft ingevoerd en probeer het nog een keer.

    recaptcha
    reCAPTCHA
    PrivacyTerms
  • Plattegronden


Vergelijkbare woningen

Verhuurd
Viviënstraat 38
2582 RT Den Haag
€ 4.750 p.m. ex.
196m² 7 kamers
Makelaars Associatie