makas.nl maakt gebruik van cookies.

We gebruiken cookies om de website naar behoren te laten werken, om functies voor social media te bieden en om onze website te analyseren. Dit gebeurt anoniem. U gaat akkoord met onze cookies als u onze website blijft gebruiken. Op onze website vindt u ook ons privacybeleid en cookieverklaring.

Gentsestraat 195, Den Haag

Specifications

Sold
Price
€ 1.295.000 k.k.
District
Belgisch Park
Location
Near quiet road, In residental area, Clear view
Zipcode
2587 HR Den Haag
Type
Duplex
BuildYear
1931
Build type
Existing
Garden
Yes, Backyard, Southeast, 780×870cm
Parking
Garage, Free standing, stone
Rooms
7
Bedrooms
5
Living surface
162m²
Plot surface
315m²
Volume
657m³
Energy label
E
Acceptance
Directly

Download Brochure


Share:

  • Description

    Op een van de mooiste plekken in het Belgisch Park gelegen halfvrijstaand (2-onder-1 kap) herenhuis met garage en flinke voor, zij- en achtertuin, gelegen op 315m2 grond, waarvan de erfpacht eeuwigdurend is verlengd en de canon is afgekocht.

    De woning met 5 slaapkamers en 2 badkamers ligt aan een verkeersluw pleintje met grasveld, op een kinderrijke locatie en met vrij uitzicht aan de voorzijde. Het huis ligt nabij strand en duinen en op loopafstand van het natuurgebied Meijendel en 100 meter van de Willem de Zwijger basisschool. Daarnaast zijn de Scheveningse bosjes en het mooie Westbroekpark met Rosarium en speeltuin ook in de nabijheid.

    De winkels en gezellige restaurants van de Gentse- en Stevinstraat liggen om de hoek. Dus zowel de rust van de natuur als de voorzieningen van Scheveningen zijn nabij.
    Ook de bekende winkelstraat de 'Fred' en de Haagse binnenstad zijn per fiets makkelijk bereikbaar. Met 6 á 7 minuten toegang tot de grote uitvalswegen richting onder meer Utrecht, Amsterdam en Rotterdam. Ook openbaar vervoer, alle sportfaciliteiten en diverse lagere en middelbare (internationale) scholen zijn niet ver weg.

    Indeling:

    parterre: entree, vestibule met glas-in-lood tochtdeur, gang met modern toilet, toegang tot de stook en voorraadkelder (6.5x1.97/1.5), doorgebroken woon-/eetkamer (10.9x3.9) met mooie vloer, erkers en schuifpui naar de achtertuin, moderne keuken (3.4x2.0) met inbouw apparatuur.

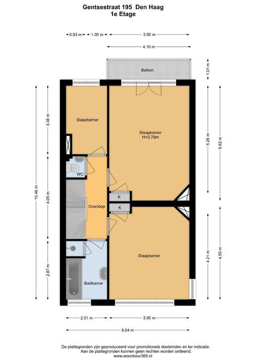
    1e etage: overloop met toilet, voorslaapkamer (4.21x3.90), met vaste kast, badkamer (2.87x2.01) met ligbad, separate douche en vaste wastafel, achter slaapkamer (5.26x4.10) met toegang tot achterbalkon (4.1x1.0) op het zuidoosten, achter zijkamer (3.4x2.01).

    2e etage: overloop, voorslaapkamer over de breedte (ca. 4.85x2.99/2.81), ruime 2e badkamer (2.83x2.64) met douche, wastafel, toilet (Sanibroyeur) en wasmachine- en drogeraansluiting, achter zijkamer over de breedte (ca. 4.97x3.49), toegang tot de vliering.

    Voortuin ca 11.0x8.3, zijtuin 14.5x3.5 met oprit en zonnige achtertuin 8.7x7.8 op het zuidoosten.

    Ruime garage 5.5x2.8.

    Bijzonderheden:

    - Bouwjaar 1931
    - Beschermd stadsgezicht
    - Erfpacht eeuwigdurend en canon afgekocht
    - C.v. ketel Nefit HR Ecomline met doorstroomboiler
    - Elektra 9 groepen + 3 aardlekschakelaars
    - Geheel voorzien van dubbel glas
    - energielabel F
    - olietank verwijderd op 25-05-1998 met Kiwa certificaat
    - Schoorsteen aan de zijkant is recent vernieuwd
    - Ouderdoms- lood- en asbestclausule zullen in de koopakte worden opgenomen
    - Asbest inventarisatierapport aanwezig
    - Niet zelfbewoningsclausule door de verkoper zal eveneens in de koopakte worden opgenomen


    De koopovereenkomst wordt vastgelegd in de NVM koopakte, waarin eventueel extra clausules worden opgenomen zoals: ouderdomsclausule, materialenclausule, de Meetinstructie, het Energielabel en afspraken voor de nutsbedrijven. De tekst van de NVM koopakte, alsmede de extra clausules, zijn op verzoek beschikbaar.

    Interesse in dit huis? Schakel uw eigen NVM-aankoopmakelaar in.
    Uw NVM-aankoopmakelaar komt op voor uw belang en bespaart u tijd, geld en zorgen.

    English Text

    Situated in one of the most beautiful locations in Belgisch Park, this semi-detached townhouse features a garage and spacious front, side, and back gardens, situated on a 315m² plot.

    The 5-bedroom, 2-bathroom house is situated on a quiet square with a lawn, in a child-friendly location, and offers unobstructed views to the front. The house is close to the beach and dunes, within walking distance of the Meijendel nature reserve and 100 meters from the Willem de Zwijger primary school. The Scheveningen woods and the beautiful Westbroekpark with its rose garden and playground are also nearby.

    The shops and charming restaurants of Gentsestraat and Stevinstraat are just around the corner, so both the tranquility of nature and the amenities of Scheveningen are close by.
    The well-known shopping street "Fred" and The Hague's city center are also easily accessible by bike. Major highways to Utrecht, Amsterdam, and Rotterdam are just 6 to 7 minutes away. Public transport, all sports facilities, and various primary and secondary (international) schools are also nearby.

    Layout:

    Ground floor: entrance hall with stained-glass door, hallway, open-plan living/dining room (10.90x3.89 m) with nice flooring, bay windows, and sliding door to the back garden, modern kitchen (3.44x2.02) with built-in appliances and a modern toilet.

    First floor: landing, front bedroom (4.21x3.90 m) with built-in wardrobe, bathroom (2.87x2.01 m) with bathtub, separate shower, and toilet, rear bedroom (5.26x4.10 m) with access to the southeast-facing rear balcony (4.10x1.01 m), rear side room (3.38x2.01 m) and toilet with a small sink.

    Second floor: landing, front bedroom spanning the entire width of the house (approx. 4.85x2.99/2.81 m), spacious bathroom (2.83x2.64 m) with shower, sink, toilet (Sanibroyeur), and washing machine and dryer connections, rear side room spanning the entire width of the house (approx. 4.97x3.49 m).

    Attic space

    Basement: boiler room and storage cellar (6.54x1.97/1.48 m).

    Front garden (11.10x8.30 m), side garden (14.50x3.50 m), and back garden (8.70x7.80 m) facing southeast.

    Spacious garage (5.50x2.84 m).

    Special features:

    - Built in 1931
    - Protected cityscape
    - Perpetual leasehold with ground rent paid off
    - Central heating Nefit HR Ecomline boiler (1999) with instantaneous water heater
    - Electricity with 9 fuses+ 3 safety switches
    - Fully double-glazed
    - Oil tank removed on May 25, 1998, with Kiwa certificate
    - Side chimney recently renewed
    - Age, lead, and asbestos clauses will be included in the purchase agreement
    - Asbestos inventory report available
    - Non-occupancy clause by the seller will also be included in the purchase agreement

    The purchase agreement will be recorded in the NVM purchase agreement, which may include additional clauses such as: age clause, materials clause, measurement instructions, energy label, and utility agreements. The text of the NVM purchase agreement, as well as the additional clauses, are available upon request.

    Interested in this house? Engage your own NVM purchasing agent.
    Your NVM purchasing agent will represent your interests and save you time, money, and worry.
    Feedback sturen

  • Location

    [ { "address": "Gentsestraat 195", "zipCode": "2587 HR", "city": "Den Haag", "lat": 52.1103723, "lng": 4.2983212, "heading": 0, "pitch": 0 } ]
  • Reply

    The form has successfully been sent. We wil contact you as soon as possible.

    Unfortunately we can not conclusively determine whether you are a human or an automated bot/spammer. Hence, we are unable to submit the form. Please retry or contact the real estate agent directly via email.

    Something went wrong while sending the contact form. Check if you correctly filled in all required fields and try again.

    recaptcha
    reCAPTCHA
    PrivacyTerms
  • Floor plans


Related houses

Sold
Van Weede van Dijkveldstraat 101
2582 KT Den Haag
€ 1.150.000 k.k.
202m² 8 rooms
Sold
Prins Mauritslaan 36
2582 LS Den Haag
€ 1.295.000 k.k.
298m² 8 rooms
Sold with conditions
Bentinckstraat 133
2582 SV Den Haag
€ 1.100.000 k.k.
198m² 9 rooms
Makelaars Associatie