makas.nl maakt gebruik van cookies.

We gebruiken cookies om de website naar behoren te laten werken, om functies voor social media te bieden en om onze website te analyseren. Dit gebeurt anoniem. U gaat akkoord met onze cookies als u onze website blijft gebruiken. Op onze website vindt u ook ons privacybeleid en cookieverklaring.

Bentinckstraat 133, Den Haag

Kenmerken

Onder bod
Prijs
€ 1.100.000 k.k.
Wijk
Geuzen- en Statenkwartier
Locatie
Aan rustige weg, In woonwijk, Beschutte ligging
Postcode
2582 SV Den Haag
Woningtype
Tussenwoning
Bouwjaar
1912
Soort bouw
Bestaande bouw
Tuin
Ja, Achtertuin, Noordoost, 650×750cm
Parkeren
Openbaar parkeren, Betaald parkeren, Parkeervergunning
Kamers
9
Slaapkamers
6
Oppervlakte
198m²
Perceel
153m²
Inhoud
820m³
Energielabel
C
Oplevering
In overleg

Download Brochure


Deel deze woning op:

  • Omschrijving

    BENTINCKSTRAAT 133 STATENKWARTIER see English text below

    In een rustige zijstraat tussen de gezellige Frederik Hendriklaan en de Frankenslag gelegen herenhuis met veel authentieke details, een voor-en achtertuin, 6 slaapkamers, 2 badkamers, 10 zonnepanelen en een kelder.
    Een fijn en goed onderhouden familiehuis dat nog niet helemaal gemoderniseerd is in een leuke straat in een van de leukste wijken van Den haag.

    Aan het begin van de straat treft u de gezellige winkels, de ontbijt- en lunchrooms, restaurants en supermarkten van de Frederik Hendriklaan. Ook lagere-, middelbare- en internationale scholen zoals de Duitse-, de Franse en de Europese school liggen op fietsafstand, evenals de vele sportfaciliteiten, ook voor de kinderen en het Scheveningse strand en de havens met de heerlijke restaurants. Door de centrale ligging in Den Haag zijn zowel het openbaarvervoer, 3 trams en 2 buslijnen, als de uitvalswegen snel bereikbaar.

    Indeling:
    zonnige voortuin, entree, vestibule met ornamenten en prachtig glas in lood, gang met parket en een fraaie trappenhuis, toilet met fontein, voor-/achterkamer en suite 6.0 x 3.8 en 7.4 x 3.75 met massieve parket met bies en openslaande deuren naar de voor- en de achtertuin, prachtig glas-in-lood, originele plafonds en schouw met open haard, moderne keuken 3.6x2.5 met L-vormige keuken opstelling en een 2e keukenblok aan de andere zijde met inbouwapparatuur, te weten inductiekookplaat, RVS afzuigkap, koel-vries combinatie, vaatwasser, oven, een combioven en een Quooker met kokend, bruisend en gefilterd water, achtertuin 7.5x5.9 op het noordoosten met meer zon dan je denkt.

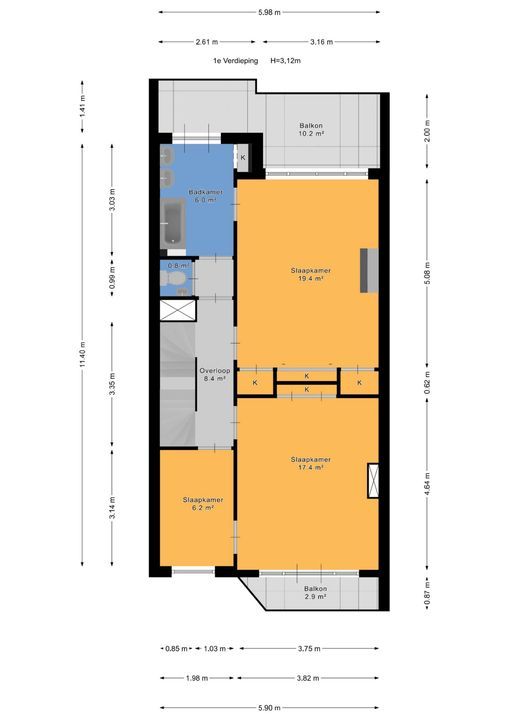
    1e etage:
    overloop, toilet met fontein, heerlijke zonnige voorkamer 4.6x3.8 met balkon, voorzijkamer 3.1x 2.0, achterkamer 5.1x3.8 met origineel plafond en inbouwkasten, eenvoudige badkamer 3.0x1.9 met ligbad en 2 wastafels, openslaande deuren naar achterbalkon (10m²) over de hele breedte.

    2e etage:
    overloop met daklicht, voorkamer 4.5x3.8, voorzijkamer 3.5x2.0 (ideaal als werkkamer), achterkamer 4.2x3.0 + 1m², tussen badkamer 3.8x1.0 met douche, wastafel en toilet, de achter zijkamer is in gebruik als waskamer met veel opslagruimte en klein balkon.

    Kelder 3.3x1.8 en doorloop naar achter 2.14x2.3 breed.

    Bijzonderheden:
    - Elektra 12 groepen + 3 aardlekschakelaars
    - Energielabel C
    - Nefit Topline HR-ketel uit 2010
    - grotendeels voorzien van Monumentaal (dubbel) glas
    - 10 zonnepanelen op het platte dak
    - dak geïsoleerd met 8 cm PIR (R-waarde van 3.6)
    - vloer geïsoleerd in 2018
    - dakbedekking vernieuwd in 2018
    - de buitenzijde wordt in april 2026 geschilderd
    - Rijksbeschermd Stadsgezicht
    - Eigen grond
    - Bouwjaar 1912

    De koopovereenkomst wordt vastgelegd in de NVM koopakte, waarin eventueel extra clausules worden opgenomen zoals: ouderdomsclausule, materialenclausule, de Meetinstructie, het Energielabel en afspraken voor de nutsbedrijven. De tekst van de NVM koopakte, alsmede de extra clausules, zijn op verzoek beschikbaar.

    Interesse in dit huis? Schakel uw eigen NVM-aankoopmakelaar in.
    ----------------------------------------------------------------------------------------------------------------------------------------

    A townhouse situated in a quiet side street between the charming Frederik Hendriklaan and the Frankenslag, featuring many authentic details, a front and back garden, 6 bedrooms, 2 bathrooms, 10 solar panels, and a cellar. A lovely and well-maintained family home that has not yet been fully modernized, located in one of the nicest neighborhoods of The Hague.

    Just around the corner on the Frederik Hendriklaan, you will find lots of shops, coffee and lunchrooms, restaurants and supermarkets. Within walking or cycling distance you will find primary, secondary and international schools, such as the German, French and European schools as well as many sports facilities (including those for children). Also close by are Scheveningen beach and harbours offering a wide range of wonderful restaurants. Due to its central location in The Hague, public transport (3 trams and 2 bus lines) and major roads are easily accessible.

    Layout:
    Sunny front garden, entrance hall with authentic stained glass, hallway with parquet flooring and a beautiful staircase, toilet with washbasin. Front/back room en suite 6.0 x 3.8 and 7.4 x 3.75 with solid parquet flooring with border and French doors to the front and back gardens. Beautiful stained glass, original ceilings and fireplace with open fire. Modern kitchen 3.6x2.5, L-shaped layout with 2 kitchen units including built-in appliances, namely induction hob, stainless steel extractor hood, fridge-freezer, dishwasher, oven, a combi microwave/oven and a Quooker (boiling, sparkling and filtered water). Back garden 7.5x5.9 facing North east, surprisingly sunny.

    1st floor:
    Landing, toilet with washbasin, lovely sunny front room 4.6x3.8 with balcony, front side room 3.1x 2.0. Back room 5.1x3.8 with original ceiling and built-in wardrobes. Basic bathroom 3.0x1.9 with bathtub and 2 washbasins, French doors to rear balcony (10m²) spanning the entire width.

    2nd floor:
    Landing with skylight, front room 4.5x3.8, front side room 3.5x2.0 (ideal as a study), back room 4.2x3.0 + 1m², in between a bathroom 3.8x1.0 with shower, washbasin and toilet. The rear side room is used as a laundry room with plenty of storage space and a small balcony.

    Cellar 3.3x1.8 and passage to the rear 2.14x2.3 wide.


    Particulars:
    - Electrical system with 12 circuits + 3 residual current devices
    - Energy label C
    - Nefit Topline high-efficiency boiler from 2010
    - Largely fitted with Monumental (double) glazing
    - 10 solar panels on flat roof
    - Roof insulated with 8 cm PIR (R-value of 3.6)
    - Floor insulated in 2018
    - Roof covering renewed in 2018
    - The exterior will be painted in April 2026
    - Rijksbeschermd Stadsgezicht (nationally protected urban landscape)
    - Freehold
    - Year of construction 1912

    The purchase agreement will be recorded in the NVM purchase deed, which may include additional clauses such as: age clause, materials clause, the Meetinstructie (measurement index) the Energy Label and agreements regarding utility companies. The text of the NVM purchase deed, as well as the additional clauses, are available upon request.

    Interested in this house? Engage your own NVM purchasing agent.

  • Locatie

    [ { "address": "Bentinckstraat 133", "zipCode": "2582 SV", "city": "Den Haag", "lat": 52.095132, "lng": 4.276146, "heading": 0, "pitch": 0 } ]
  • Reageer

    Uw bericht is naar ons verzonden. Wij nemen zo snel mogelijk contact met u op.

    Sorry, we kunnen helaas niet met zekerheid vaststellen of je een mens of een geautomatiseerde bot/spammer bent. Hierdoor kunnen we het formulier dat je hebt ingevuld niet verzenden. Probeer het opnieuw of neem direct contact op met de makelaar via e-mail.

    Er is iets mis gegaan met het versturen van het formulier.
    Controleer of u alle velden (goed) heeft ingevoerd en probeer het nog een keer.

    recaptcha
    reCAPTCHA
    PrivacyTerms
  • Plattegronden


Vergelijkbare woningen

Verkocht
Van Weede van Dijkveldstraat 101
2582 KT Den Haag
€ 1.150.000 k.k.
202m² 8 kamers
Verkocht
Prins Mauritslaan 36
2582 LS Den Haag
€ 1.295.000 k.k.
298m² 8 kamers
Verkocht
Gentsestraat 195
2587 HR Den Haag
€ 1.295.000 k.k.
162m² 7 kamers
Verkocht
Cornelis Jolstraat 32
2584 ES Den Haag
€ 997.500 k.k.
188m² 7 kamers
Makelaars Associatie